No.247 高知市 T様邸 マンション内装デザイン工事(2023年3月完成)
「ピュアモリスに想いを込めて。」
《入賞》LIXILメンバーズコンテスト2023「空間デザイン賞インテリア部門」
《佳作》「ジェルコリフォームコンテスト2023中国四国大会」
《きっかけ》
1年前にお気に入りのダイニングテーブルを購入し、この機会にリビングダイニングをリフォームをしようと決意しましたが、なかなか自分の想いを叶えてくれる業者にめぐり合えず、ずっと悩み続けて1年後にやっと「もしかしたら、自分の理想のリビングダイニングにリフォームをしてくれるかもしれない!」
という事で弊社ホームページからご依頼をいただきました。
《ご要望》
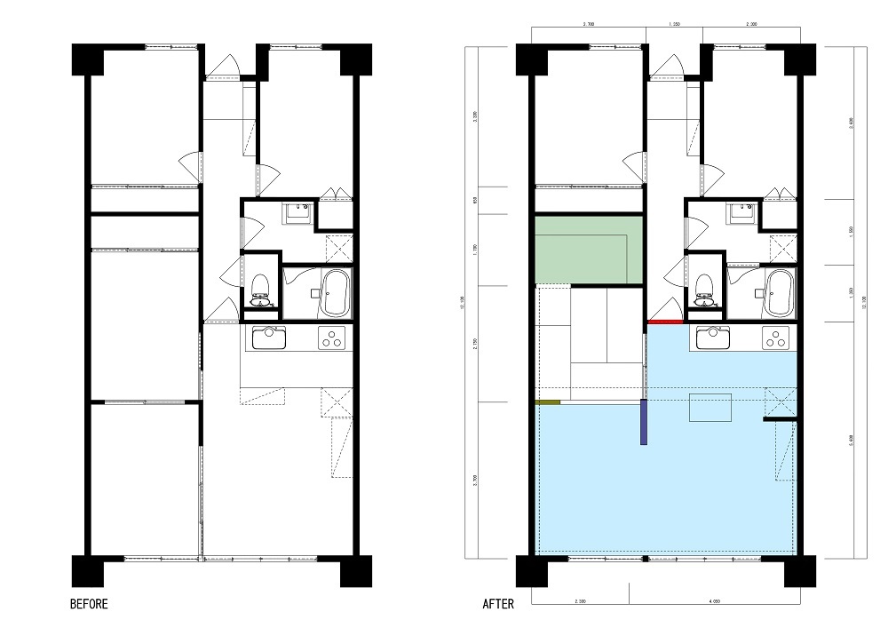
10年程前にキッチンはアレスタにリフォームをしていたのでキッチンはそのままで間取りも大きくは変えず、和室6畳+押入から和室4.5 畳+ウォークインクローゼットに。
リビングと和室に繋がる段差をバリアフリーにしてカーペットからフロア(L-40)にしたい。とにかく1年前に購入したダイニングテーブルや既存の家電収納にマッチした
内装にしたいけど、全くどんな風にしたら良いのかわからないので、提案をお願いします!とのご要望でした。



↓画像はクリックで拡大します↓
Before
お客様の声
リフォームをしたいと1 年間悩み続けて、やっと理想を形にしてくれる業者さんに出会えました!
好きな色やテイストをお話しすると迅速に提案して頂き、私が思っている以上の素敵な空間になりました。
我が家を訪問した人達は皆、「モデルルームみたいで凄く素敵!」と言ってくれます。
好きな空間にいると、とても癒され充実した毎日を過ごせます。本当にありがとうございました!