No.273 高知市 Y 様
「古民家リノベーション工事」 (2025年8月 完成)
「古民家に、新しい時間を宿す。」
《審査員奨励賞》「TDYリモデルデザインアワード2025」
憧れの暮らしをかなえるリモデル部門
将来は高知に拠点を──
そんな想いから中古の古民家を購入されたお施主様。築70年の古民家を耐震リノベ。
玄関は趣を残しつつ、耐震の関係で撤去した組子建具を壁にデザインとして再利用。
新しく貼ったタイルと組子細工を組み合わせ、印象的な玄関正面が完成しました。
欄間の組子、障子越しの柔らかな光、木の深みある表情。和の美しさを大切にしながら、現代の暮らしに寄り添う空間へ。
「帰りたくなる家」──そんな想いを込めています。
将来は高知に拠点を──
そんな想いから中古の古民家を購入されたお施主様。築70年の古民家を耐震リノベ。
玄関は趣を残しつつ、耐震の関係で撤去した組子建具を壁にデザインとして再利用。
新しく貼ったタイルと組子細工を組み合わせ、印象的な玄関正面が完成しました。
欄間の組子、障子越しの柔らかな光、木の深みある表情。和の美しさを大切にしながら、現代の暮らしに寄り添う空間へ。
「帰りたくなる家」──そんな想いを込めています。
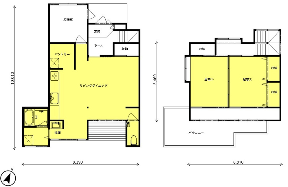
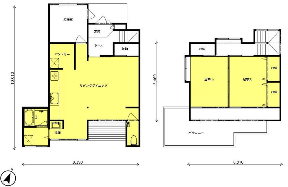
Before
After
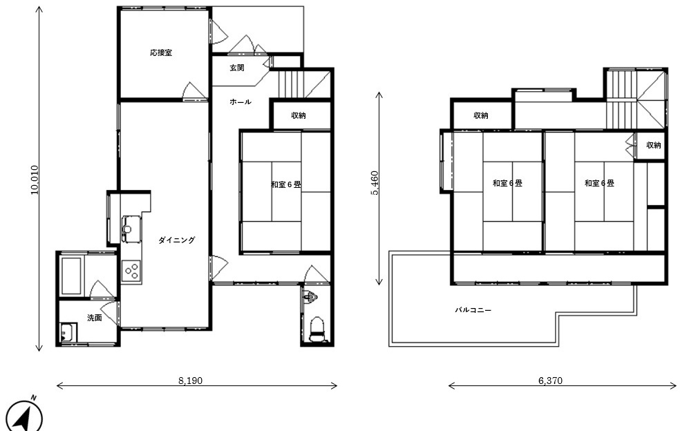
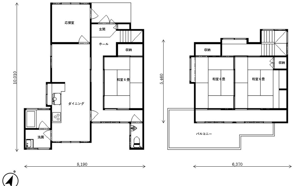
Before
↓画像はクリックで拡大します↓