No.228 高知市 N様邸 水回り改修工事(2021年4月 完成)

「夕暮れ時々ワイン」

《全国審査員奨励賞》TDYリモデルスマイル作品コンテスト2021(キッチン・リビング部門)
《全国優秀賞》第29回ジェルコリフォームコンテスト2021(デザイン部門)


 退職を機に前々から水回りをリフォームされたいとの思いがあり今年こそは!!という事でご依頼を頂きました。
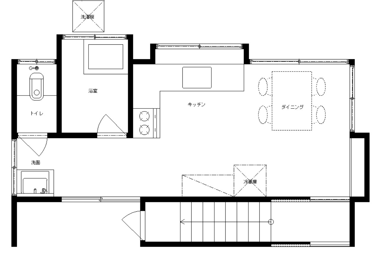
細長いスペースにキッチン、浴室、トイレと、リフォーム前は脱衣室がなく「あれ、洗濯機はどこですか?」と聞くと
「実はね。ここながよー!」と浴室の窓を開けるとこんなところに!!お施主様も「変わったところにあるろー(笑)」
と和やかな雰囲気で現調を終えた事もつい最近の出来事のようです。キッチンから裏庭のグリーンを眺めたい!との
ご要望もあり、キッチンの天端から吊戸まで開口部とし、吊戸裏に間接照明を取り入れました。またメインとなる照明
も天井高が2200mmと少し低めだったので、羽目板天井の目地ラインに沿って埋め込みの照明としスッキリとさせました。
冷蔵庫も階段下を有効利用して出来るだけダイニングを広く!シンプルなデザインではありますが、朝から夜になるにつ
れて、間接照明の演出でキッチンの雰囲気が変わっていきます。『夕暮れ時々ワイン』これから奥様とお二人の時間を
大切に過ごして頂きたいです♡ご主人様からは、「とにかく最高!だいたいのイメージは頭の中で出来ていましたが 予想
をはるかに超える仕上がりに感動です。夕部さんがこだわってくれた間接照明でキッチンの雰囲気が全然ちがいます!
これからは妻とゆっくりと夕暮れ時からワインを飲みたいと思います。」とのお言葉を頂きました♪


(リフォーム前)
K様邸 マンション改修工事

 
(リフォーム後)

↓画像はクリックで拡大します↓

Before

After